새 아파트 값이 너무 비싸기 때문에 낡고 오래된 아파트로 이사를 가야할 경우가 많습니다. 이때 아파트 리모델링을 통해 전혀 다른 분위기를 연출할 수 있습니다. 오늘은 18평 아파트 리모델링 잘된집을 소개해드리고자 합니다. 따뜻한 분위기가 가득한 감성있는 오늘의 집입니다.
18평 아파트 리모델링
작은 평수의 오늘의 집은 기존의 벽을 철거하고 집을 더 개방적이고 넓게 리모델링을 하였습니다. 1인 가구 혹은 신혼 부부들이 생활하기에 편하고 감성있는 디자인을 선택하여 포근한 집으로 변하였습니다.


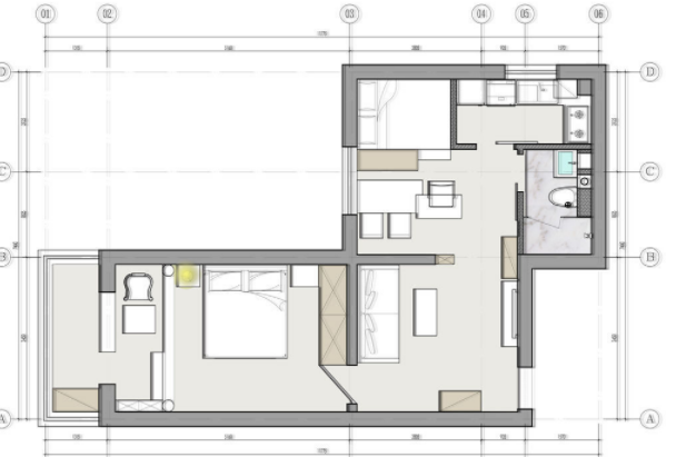
- 주방과 욕실 공간의 벽 구조가 복잡하게 되어 있습니다. 기존의 벽을 철거하고 공간을 조정하여, 침실과 욕실 공간을 넓혔습니다. 반면 주방 공간은 정사각형 모양에서 직사각형 형태로 바꾸었습니다.
- 왼쪽의 침실 공간이 너무 크기 때문에 공간을 분리하여 활용하도록 하였습니다.
- 전체적으로 심플하고 단순한 디자인으로 인테리어 리모델링을 진행하였습니다. 공간이 좁기 때문에 넓어보이도록 밝은 색을 사용하였으며, 최대한 단순한 디자인의 가구들을 배치하였습니다.
거실

18평 아파트 리모델링 잘된집을 살펴보겠습니다. 현관에서 바라본 거실입니다. 몰딩을 없애고 천장과 벽은 베이지색이 약간 가미된 밝은 색으로 칠하였습니다. 바닥과 가구는 월넛 색의 원목을 사용하여 따뜻하고 포근한 느낌이 듭니다.
특히 이번 아파트 인테리어에서 살펴볼 점은 오른쪽의 벽 구조를 변경하여 통로를 넓혔다는 것입니다. 벽의 일부를 제거하여, 공간이 탁 트이는 느낌을 주며 보다 넓어보이는 효과를 줍니다.


거실 수납을 용이하게 하기 위해서 통나무로 만들어진 수납장을 사용하고 있습니다. 바닥보다 조금 더두운 색상을 선택하여 차분하고 정돈된 느낌을 줍니다. 턴테이블과 바구니, 액자 등을 바닥에 나란히 배치하여 감성이 돋보입니다.

소파 반대편 모습입니다. 티비장과 선반이 통일감 있게 배치되어 있으며, 원목 가구를 이용하여 따뜻하고 네추럴한 느낌이 듭니다. 최대한 깔끔한 스타일의 가구를 선택한 대신 아기자기한 소품으로 거실을 연출해 주었습니다.
다이닝 룸

18평 아파트 인테리어 다이닝 룸입니다. 거실에서 오른쪽으로 들어가면 주방과 사이에 다이닝 룸이 있습니다. 확실히 벽을 제거하여 이동 통로를 넓혀 개방감을 주고 있습니다. 기존에는 문 하나 정도의 공간만 있었기 때문에 그대로 활용했다면 매우 답답했을 것으로 보입니다.
밝은 색상의 나무 바닥과 흰색 벽은 심플하고 깔끔한 느낌을 줍니다. 원목 식탁과 큰 활엽수 화분, 꽃병 등을 배치하여 자연친화적인 느낌을 줍니다.


18평 아파트 인테리어의 경우 좁은 공간을 다양하게 활용할 수 있어야 합니다. 오늘의 집은 공안의 한쪽은 식탁을 배치하고, 옆쪽으로는 침대를 놓아 침실 겸용으로 사용하고 있습니다. 다만 공간을 구분하기 위해 커튼을 설치하였는데, 바닥에 닿지 않는 길이를 선택하여, 공간을 구분하면서도 답답하지 않도록 연출했습니다.
주방, 욕실

아파트 리모델링이 된 주방 인테리어입니다. 기존에 넓던 주방은 벽 구조를 변경하여 조금 줄어든 상태입니다. 하지만 1인 혹은 2인 가구가 사용하기에는 충분한 공간을 갖추고 있습니다.
기억자 주방을 설치하여 동선을 간편하게 하였으며, 유리 미닫이 문을 설치하여 공간은 적게 차지하면서 확실하게 구분할 수 있도록 하였습니다.

화장실 인테리어는 공간을 잘 활용하기 위해 세면대를 작은 사이즈로 배치하였으며, 유리로 된 슬라이딩 도어를 설치하여 샤워 공간을 따로 구분하고 있습니다.
전체적으로 그레이 색상의 큰 타일을 사용하여 좁지만 넓고 깨끗한 느낌과 고급스러운 분위기를 줍니다.
침실

18평 아파트 리모델링 침실 인테리어입니다. 긴 직사각형 모양의 침실은 넓은 공간을 잘 활용하기 위해 베란다 쪽에 단을 높여 공간 분리를 하였습니다.
전체적으로 밝고 따뜻한 느낌이 들도록 밝은 원목 색상의 가구와 인테리어를 해주었으며, 포인트 벽의 경우 식물 그림의 벽지를 사용하여 플랜테리어를 적용하고 있습니다.


침실의 안쪽 공간은 단을 높이고 좌식 테이블과 선반 등을 설치하여 휴식 및 취미 생활을 즐길 수 있는 공간으로 만들었습니다. 차를 마시거나 책을 읽고, 부부가 담소를 즐길 수 있는 공간이며, 커튼을 설치하여 필요할때는 보이지 않도록 가려둘 수도 있습니다.
오늘 소개해드린 18평 아파트 리모델링 잘된집 구경은 어떠셨나요? 크게 공간 구조가 바뀌지는 않았지만 자신의 생활 방식에 따라 인테리어 리모델링을 통해 보다 편리한 구조로 집을 바꿀 수 있습니다. 작은 아파트, 낡은 아파트지만 나만의 감성있는 집으로 잘 변한것 같습니다.
18평 아파트 인테리어, 작은 아파트 인테리어 예쁜집
작은 아파트 인테리어는 단순하고 깔끔하게 하는 것이 가장 좋습니다. 하지만 자칫 너무 단조로울 수 있다는 단점도 있습니다. 따라서 오늘은 북유럽과 일본식 인테리어를 잘 섞어놓은 믹스 앤
zip.googling.pw
21평 아파트 인테리어 리모델링 잘된집
집 값이 점점 치솟으면서 기존의 낡은 아파트를 구입하여 리모델링을 하는 분들이 많습니다. 좁은 공간도 어떻게 연출하느냐에 따라서 더 넓고 편리하게 꾸밀 수 있기 때문입니다. 오늘은 21평
zip.googling.pw
심플한 24평 아파트 인테리어 구경하기
깔끔한 것을 좋아하는 분들을 위해 심플한 24평 아파트 인테리어를 준비했습니다. 단순한 프레임의 가구와 미니멀한 디자인으로 꾸며진 곳입니다. 색을 많이 사용하지 않고 최대한 깔끔하고 미
zip.googling.pw
원룸 인테리어 예쁜집 구경하기
원룸의 경우 좁은 공간에 침실, 거실, 주방 등이 모두 있어야 하기 때문에 공간활용이 매우 중요합니다. 좁은 공간을 실용적으로 표현하는 것이 인테리어의 미학인 만큼, 오늘은 다양한 원룸 인
zip.googling.pw